時間:2018-10-18 13:08:57 品牌: 依愛
![[!--oldtitle--]](/d/file/baojingshebei/2018-10-18/552aa53a555c569bdbc036c5b447e017.jpg)
電(diàn)子編(biān)碼,唯一ID,控制器在線編(biān)址或編(biān)碼器設地址,自動登錄,安裝調試方便。
雙輸入、雙輸出端口,可單(dān)獨編(biān)程,分别使用,亦可組合使用。
可檢測設備(bèi)側(cè)信号輸入線斷路故障。
可檢測(cè)24V斷(duàn)線故障。
新型插拔式結(jié)構(gòu),安裝、接線方便。
二、J-EI6042型輸入/輸出模塊外形及安裝尺寸
| 型号 | J-EI6042 |
| 使用環境溫度 | 10C+50C |
| 使用環境濕度 | <95RH(不凝露) |
| 總線工作電壓 | 24V脈動電壓 |
| 線制 |
兩總線(無極性) DC24V電源(有極性) |
| 24V電源 | DC24V1015 |
| 監視電流 | <0.35mA(總線);<1.0mA(DC24V) |
| 總線長度 | ≤2000m |
| 動作電流 | <2.5mA(總線);<40mA(DC24V) |
| 負載電阻 | 1/4W47k(白色套管) |
| 繼電器觸點 | 兩組常開常閉,DC30V/5A |
| 外殼防護等級 | IP30 |
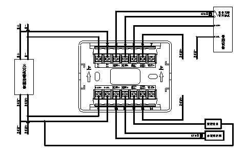
安裝
輸入/輸出模塊一般安裝在受控設備(bèi)附近,也可集中安裝於(yú)模塊箱内。
安裝模塊時,先用M4螺釘(dīng)将底座固定在DH86預埋盒上,接線完畢(bì)後,将模塊扣合在底座上。
接線
不可直接控制交流強電(diàn),應通過(guò)中間繼電(diàn)器轉換!
模塊的“返回”端應接設備(bèi)的無源觸(chù)點,不能接有源信号!
S+和S-接系統總線,無極性連接。“常開1”、“公共1”和“常閉1”對應内部繼電器的一組觸點;“常開2”和“常閉2”對應另一繼電器的一組觸點。“返回1”和“返回2”應分别並(bìng)接47kΩ負載電阻,若返回端需連接外部設備(bèi),則将相應的負載電阻移至外部設備(bèi)處並(bìng)接。請勿控制聲光和警鈴。
